Villatomter på Södra Sörkastet

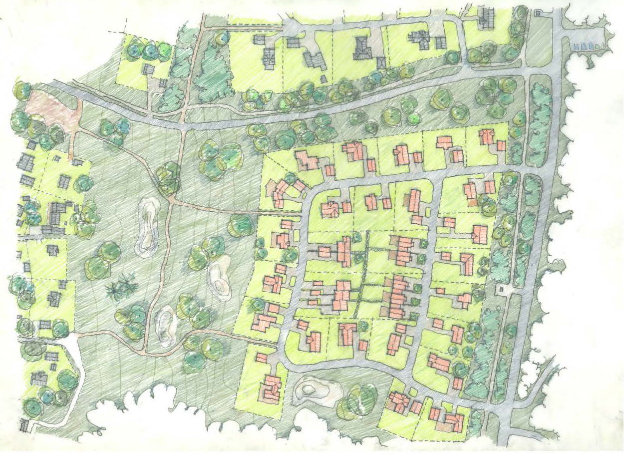
Södra Sörkastet ligger söder om Beckasinvägen endast 4 kilometer från Kristinehamns centrum. Ett stenkast från området hittar du gemytliga badplatser, bryggområden, restauranger, cafeér, strövområden och mycket mer. Här har du både naturen och en fantastisk vänervy som nära grannar. Södra Sörkastet är ytterligare ett steg i kommunens pågående utveckling av nya bostadsområden längs med Tranvägen i Östra Vålösundet.
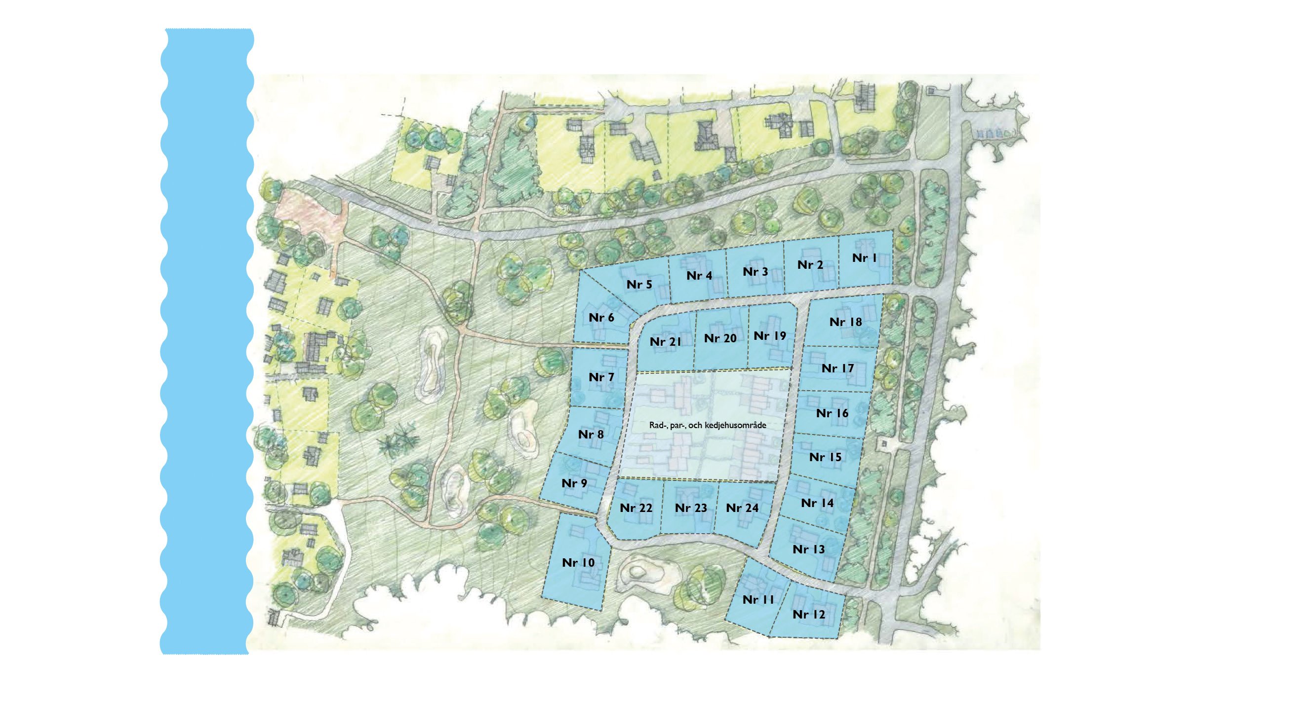
Södra Sörkastet består av 24 villatomter samt ett rad-, par- eller kedjehusområde med cirka 20 bostäder. Villatomternas storlek är minst 1200 kvm och har generös byggrätt, 20% av fastighetsarean får bebyggas med en friliggande villa och komplementbyggnader i ett eller två plan.
Nu är utbyggnaden av gator och vatten- och avloppsledningar färdig och de första tomterna är redo att släppas till försäljning i slutet av augusti.
Pris: 750 000 – 1 000 000 konor, exklusive VA-anslutning.
Mer information om tomterna uppdateras löpande, nedan kan du läsa gällande planhandlingar
Försäljningsprocessen
Tomt nr 1-17 kommer att säljas via upphandlad mäklare Svensk Fastighetsförmedling.
Information om övriga tomter 18-24 kommer inom kort.
Budgivning på tomt 10 startar onsdag 20/8 kl 12.00
Bokning av övriga tomter sker via e-post till ansvarig mäklare linda.karas@svenskfast.se från och med den 29/8 kl 12.00.
Ett informationsmöte med representanter från Kristinehamns kommun och Svensk Fastighetsförmedling kommer att hållas på tomterna på Södra Sörkastet fredag den 15/8 kl 12.00-15.00.
Intresserad av en tomt?
Kontakta Linda Karas, fastighetsmäklare Svensk Fastighetsförmedling
Mejl: linda.karas@svenskfast.se
Telefon: 070-485 10 13
Läs mer om projektet och se nytagna bilder från området på Svensk Fastighetsförmedlings hemsida.
Är du intresserad av markanvisningsprocessen kan du klicka här för mer information.