Södra Sörkastet

Välkommen till Södra Sörkastet - ett nytt bostadsområde i Kristinehamns vackra skärgård!
Endast fyra kilometer från Kristinehamns centrum får du här både naturen och en fantastisk vänervy som nära grannar. Ett stenkast från området finns gemytliga badplatser, bryggområden, restauranger, caféer och strövområden i vacker skärgårdsmiljö. Södra Sörkastet är ytterligare ett steg i kommunens pågående utveckling av nya bostadsområden längs med Tranvägen i Östra Vålösundet. Södra Sörkastet är idag helt obebyggt och som första steg byggs nu infrastrukturen ut i området genom anläggande av gator samt vatten- och avloppsledningar.
Intresseanmälan för markanvisning
Kristinehamns kommun bjuder in intresserade byggherrar att lämna intresseanmälan för markanvisning i Södra Sörkastet. Syftet med intresseanmälan är att ge olika byggherrar möjlighet att inkomma med förslag på byggnation av bostäder och på så sätt säkerställa att Södra Sörkastet får en genomtänkt gestaltning som berikar närområdet.
Markanvisningsområdet består av flera tilldelningsområden som omfattar två områden för bostäder i valfri bebyggelseform upp till 2 våningar samt tomter för friliggande småhus. Intresseanmälan kan lämnas för ett eller flera områden och användningar.
Intresserade byggherrar är välkomna att lämna intresseanmälan senast den 30 maj 2025. Anmälan ska lämnas in digitalt via e-tjänsten.
Om du är privatperson och är intresserad av en villatomt i området, klicka här för information.
Vår vision
Vi ser gärna en bebyggelse med omsorgsfull och varierad utformning, där husen tillsammans med grönska bidrar till att skapa en inbjudande entré till bostadsområdet. Vår vision är en boende- och utemiljö som bidrar till goda boendekvalitéer, utemiljö som präglas av grönska och en god standard när det kommer till hållbara materialval. Det står intresseanmälaren fritt att besluta om upplåtelse- och boendeform. Kringliggande naturområde bevaras med skogskaraktär för att upprätthålla känslan av naturen i omgivningarna. På tomterna är det angeläget att ett urval av träd och annan växtlighet behålls.
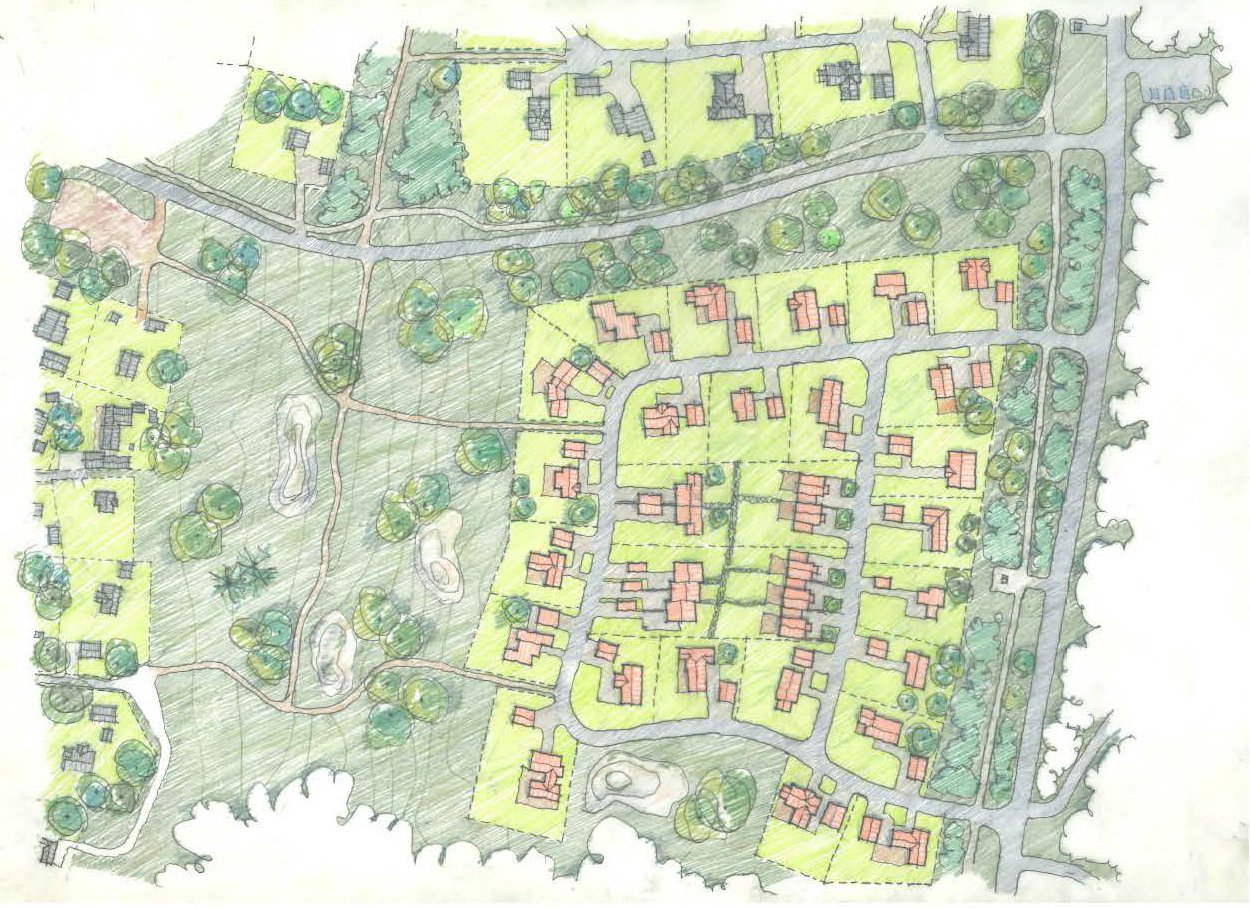
Område
Hela planområdet består av 24 villatomter och 2 tomter för bostäder i valfri bebyggelseform upp till 2 våningar. Intresseanmälan för markanvisning omfattar 3 områden enligt kartan nedan.

Detaljplan
För området gäller Detaljplan för Södra Sörkastet som vann laga kraft 2024-03-22 (akt 1781-P2024/1). Markområdet är planlagt som kvartersmark för bostäder. Kommunen har ett pågående arbete för ändring av detaljplanen avseende område Sörkastet 1 och 2. I ändringen tillkommer en fastighetsindelningsbestämmelse samt en bestämmelse om maximal byggrätt per fastighet uppgår till 1500 kvmBTA.
Se bifogade antagandehandlingar;
Plankarta (Bilaga 1)
Plankarta i dwg-format (Bilaga 2)
Planbeskrivning (Bilaga 3)
Fastighetsbildning
Planområdet är fastighetsbildat
Allmän Plats
Kommunen är huvudman för allmän plats och svarar därmed för utbyggnad och skötsel av denna. Gatukostnadsersättning utgår inte.
Avgifter
Planavgift utgår enligt taxa och bekostas av byggherren i samband med bygglov. Avgifter för VA-anslutning, el etc utgår enligt taxa.
Markanvisningsavtal
Med markanvisning avses en överenskommelse mellan kommunen och en byggherre om överlåtelse av ett visst av kommunen ägt markområde för bebyggande. När kommunen beslutat om val av byggherre tecknas ett avtal för markanvisning som ger byggherren ensamrätt att under en begränsad tid och under givna villkor förhandla med kommunen.
Markanvisningsavtal tecknas mellan kommunen och byggherren senast tre (3) månader efter tilldelad markanvisning.
Markpris
Markpris för tilldelningsområde 1 och 2 är 1 350 000 kr per område/fastighet, vilket motsvarar 900 kr/maximal tillåtna kvmBTA. Markpris per villatomt framgår i tabell under tilldelningsområdet.
Krav på byggherre för att få markanvisning
Innan beslut om markanvisning fattas gör kommunen en bedömning av byggherrens/anbudsgivarens kreditvärdighet. I bedömningen ingår undersökning av bolagets organisationsstruktur, betalningsförmåga, verksamhetshistoria, finansiella situation samt genomförandekraft.
Behörighet
Byggherren ska vara registrerad i aktiebolags-, handels- eller föreningsregister eller motsvarande register som förs i det land där byggherrens verksamhet är etablerad. Uppgifterna kommer att kontrolleras av kommunen hos berörd myndighet
Kopia på registreringsbevis eller motsvarande i annat EU-land, inte äldre än 6 månader och F-skattebevis lämnas efter anmodan.
Ekonomisk ställning
Byggherren ska ha ekonomiska och finansiella förutsättningar att genomföra projektet. Kommunen kommer att kontrollera byggherrens ekonomiska och finansiella förutsättningar via Creditsafe. Byggherren ska i riskintyg från Creditsafe ha lägst rating god kreditvärdighet eller motsvarande hos annat ratinginstitut.
Byggherren;
- får inte vara i konkurs eller är föremål för insolvens, eller likvidationsförfaranden
- får inte vara föremål för tvångsförvaltning
- får inte ingått ackordsuppgörelse med borgenär, eller har avbrutit sin näringsverksamhet
Uppgifterna kommer att kontrolleras av kommunen hos berörd myndighet eller kreditinstitut.
Obetalda skatter och socialförsäkringsavgifter - Uppgifter från Skatteverket
Kommunen eftersträvar samarbete med enbart seriösa byggherrar och har därför ett samarbete med Skatteverket om förebyggande information. Samarbetet med förebyggande information innebär en kontroll av en byggherres skattestatus. Byggherren ska ha fullgjort sina skyldigheter avseende betalning av skatter eller socialförsäkringsavgifter. Kontroll kommer att göras av kommunen hos Skatteverket.

Tomtareal: ca 3500 kvm
Beräknad byggnadsarea: 1400 kvm
Särskilda förutsättningar:
- Inom området ska det uppföras maximalt 10 bostäder
- Bostäderna får uppföras i valfri bebyggelseform i upp till 2 våningar
- Området utgörs av en fastighet och får inte delas in i mindre fastigheter
- Serviceanslutning till området sker i områdets sydvästra hörn
- Ändring av detaljplanen pågår för området vilket innebär tillkommande bestämmelser:
- Fastighetsindelningsbestämmelse
- Maximal bruttoarea 1500 kvm
- Bestämmelsen om rad-, par, eller kedjehus stryks

Tomtareal: ca 3950 kvm
Beräknad byggnadsarea: 1580 kvm
Särskilda förutsättningar:
- Inom området ska det uppföras maximalt 10 bostäder
- Bostäderna får uppföras i valfri bebyggelseform i upp till 2 våningar
- Området utgörs av en fastighet och får inte delas in i mindre fastigheter
- Serviceanslutning till området sker i områdets sydvästra hörn
- Ändring av detaljplanen pågår för området vilket innebär tillkommande bestämmelser:
- Fastighetsindelningsbestämmelse
- Maximal bruttoarea 1500 kvm
- Bestämmelsen om rad-, par, eller kedjehus stryks

Tilldelning sker med upp till 4 villatomter per intresserad aktör som uppfyller förutsättningarna
Tomtarealer och priser:
|
Tomtnr |
Ca Areal |
Pris |
Kommentar |
|
Nr 13 |
1480 kvm |
825.000 kr |
Hörntomt. Gränsar till park i öster. |
|
Nr 14 |
1360 kvm |
775.000 kr |
Mellantomt. Gränsar till park i öster. |
|
Nr 15 |
1400 kvm |
775.000 kr |
Mellantomt. Gränsar till park i öster. |
|
Nr 16 |
1350 kvm |
775.000 kr |
Mellantomt. Gränsar till park i öster. |
|
Nr 17 |
1420 kvm |
775.000 kr |
Mellantomt. Gränsar till park i öster. |
|
Nr 18 |
1570 kvm |
825.000 kr |
Hörntomt. Gränsar till park i öster. |
|
Nr 19 |
1310 kvm |
775.000 kr |
Hörntomt mot gata. Läge i kvarter. |
|
Nr 20 |
1350 kvm |
750.000 kr |
Mellantomt. Läge i kvarter. |
|
Nr 21 |
1310 kvm |
775.000 kr |
Hörntomt mot gata. Läge i kvarter. |
|
Nr 22 |
1300 kvm |
775.000 kr |
Hörntomt mot gata. Läge i kvarter. |
|
Nr 23 |
1210 kvm |
750.000 kr |
Mellantomt. Läge i kvarter. |
|
Nr 24 |
1370 kvm |
775.000 kr |
Hörntomt mot gata. Läge i kvarter. |
Intresseanmälan ska innehålla
- enklare idéskiss och beskrivning över förslag till bebyggelse, gärna tillsammans med referensbilder
- uppskattad mängd kvm BTA, alternativt antal tomter
- planerad upplåtelseform (hyresrätt/bostadsrätt), alternativt äganderätt
- Vid intresse av flera områden ska prioriteringsordning lämnas, i separat bilaga som bifogas med e-tjänsten
För kommunens val av byggherre ska även följande information lämnas
- Beskrivning av byggherren samt ekonomisk information som visar byggherrens förmåga att genomföra bostadsprojektet.
- Referensprojekt som visar företagets förmåga att driva och slutföra bostadsprojekt.
Intresseanmälan ska lämnas senast 2025-05-30.
Via e-tjänsten på kommunens hemsida
Alternativt via post:
Postadress: Kristinehamns kommun, Samhällsplaneringsavdelningen, 681 84 Kristinehamn
OBS märk försändelsen ”intresseanmälan Södra Sörkastet”
Bilagor
Bilaga för prioritering, bifogas med e-tjänsten tillsammans med din idé
Vid valet av byggherre för markanvisning kan tidigare genomförda projekt och markanvisningar beaktas liksom nytänkande, långsiktig kvalitets- och miljöprofil samt byggherrens förmåga att genomföra projektet utan tidsfördröjning. För att främja goda konkurrensförhållanden där fler byggherrar, både stora och små, ges möjlighet att etablera sig i kommunen och inom specifika områden, kommer även denna aspekt att påverka kommunens val av byggherre.
Val av byggherre kommer att genomföras av en tjänstepersonsgrupp.
Fri prövningsrätt
Kristinehamns kommun har fri prövningsrätt och förbehåller sig rätten att förkasta samtliga inkomna intresseanmälningar.
Kommunikation om beslut
Beslut om val av byggherre kommer att tillställas samtliga som lämnat intresseanmälan via e-post till den e-postadress som byggherren har lämnat.
Kontaktuppgifter
mex@kristinehamn.se
larseric.engstrom@kristinehamn.se
0550 - 881 74